プーケットで20年以上ヴィラ開発を行ったBotanica Luxury Villasが手掛けたラグジュアリーコンドミニアム

Botanica Luxury Villas は、プーケットを拠点とする高級不動産ブランドであり、20年以上にわたり40件以上のプロジェクトを完成させてきた実績あるデベロッパーです。国際的な受賞歴を持ち、プーケット市場では Laguna Property に並ぶトップクラスの信頼ブランド として投資家から高く評価されています。今回は彼らが初めて手掛けたコンドミニアム Hythe By Bothanica (ハイス バイ ボタニカ )の1ベッドルームを紹介します。
基本情報
運用収益も将来の伸びもねらえる、ラグーナエリアの物件
- 物件名
- HYTHE by Botanica
- 所在地
- 60 Laguna Fairway Choeng Thale, Thalang District, Phuket 83110
- 開発会社
- Botanica Luxury Villas
- 総戸数
- 276部屋 / 6階 (全4棟)
- 完成予定
- 2027年
- タイプ
- 1ベッドルーム(55.9~58.78㎡)
2ベッドルーム、3ベッドルームもありますが、本ブログでは1ベッドルームのみ紹介します。 - 価格帯
- 10,962,000THB(約5200万円)より
- 付帯施設
- スイミングプール、パーティー用プール、子供用スイミングプール、ジャグジー、サンデッキ、クラブハウス(フィットネスルームなどがある)、デイベッド&テラス、ガーデン
- オフィシャルサイト
- HYTHE by Botanica 公式サイトはこちら
プーケットの中でも国際的に高い評価を得ている ラグーナ地区。ここは高級リゾートホテルやゴルフ場、ショッピングモール、インターナショナルスクールが整い、外国人富裕層や長期滞在者からの需要が継続的に見込まれる、プーケット随一のプレミアムロケーションであり、現在ここでHYTHE BY BOTHANICA (ハイス バイ ボタニカ)の開発が進んでおります。
ラグーナエリアの概要
ラグーナエリアは以前から高級ホテルが並ぶエリア。バンヤンツリープーケットやアンサナラグーナプーケット、ディュシタニラグーナプーケット、SAII ラグーナプーケットが代表的なホテルです。
傘下の Laguna Propertyは2000年ごろからコンドミニアム開発を進めており、長期滞在のニーズに合った物件を展開しています。現在はパトンビーチやカタビーチなどプーケットの南側がリゾートエリアとして知られていますが、近年のプーケット島内の車の交通量がかなり増えたことにより、空港から車で1時間30分程度掛かります。
その為、空港から車で25~35分程度の比較的近いマイカオエリア、ラグーナエリア、スリン等が今後はリゾートエリアとして開発が進むと予想できます。また、周辺にはBoat AvenueやPorto de Phuketなどの商業施設もあることから、近年は北部エリア開発の中心地として注目され、長期滞在・投資の双方で人気が高まっています。
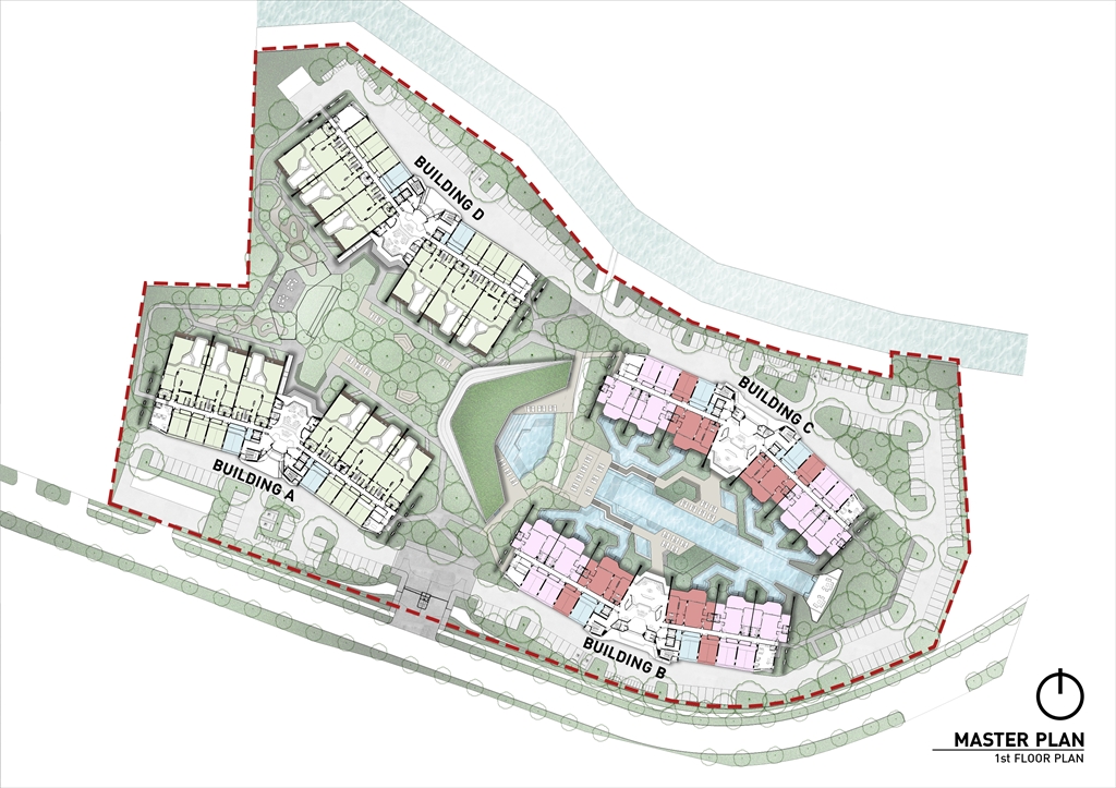
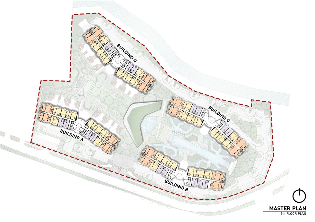
HYTHE BY BOTHANICA (ハイス バイ ボタニカ) フロアプラン
全4棟・各6階のレジデンス(計276部屋)であり、駐車場スペースは171台(全体戸数の約6割)。各棟には2台のEVチャージが備わっております。また、建物の中央にはスイミングプールやフィットネスルーム、ガーデンなどの施設が備わっています。
HYTHE BY BOTHANICA (ハイス バイ ボタニカ) レイアウト
1ベッドルームの間取りは56~57.25㎡であり、かなり広い間取りです。プーケットタウン等で見かける25~35㎡程度のスタジオや1ベッドルームとはことなり、プレミアエリアのラグーナエリアの物件であることから、長期レンタルのテナントを意識した、高級感のあるレイアウトになっております。
HYTHE BY BOTHANICA (ハイス バイ ボタニカ)のセールスポイント
Hythe by Botanica の1ベッドルームは、プーケットという世界的リゾートの特性から、乾季・雨季・繁忙期に応じて 月額75,000~140,000バーツ前後の家賃が管理側によって設定されます。また、専任の運営チームがレンタルプログラムを運用するため、オーナーは資産価値を維持しながら安定した収益を期待できます。尚、家賃収入から管理費として約20%が差し引かれ、残りがオーナー収入となります。つまり資産価値を保ちながら、収入を得ることができるというシステムです。
Views: 8
















